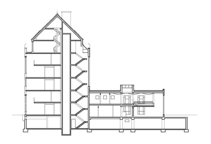
Hôtel L'Olivier à Strassen, Luxembourg Appart-hôtel avec Restaurant

1989-1992; 2005; 2013-2014

« Olivier Luxembourg »  hôtel - restaurant - séminaires, a ouvert ses portes au public depuis novembre 1992 après 3 ans de construction, et propose dès son ouverture des prestations dans les domaines de la restauration, des séminaires et de l'hôtellerie.

L'établissement ne cesse d'évoluer pour répondre aux envies et aux besoins de sa clientèle. De la sorte en 2005, les offres de restauration sont élargies avec la création d'une nouvelle salle  » Mazzabar », mais aussi, d'une nouvelle brasserie.

Un air nouveau souffle depuis début 2005 sur l'Olivier, ceci grâce à un projet de décoration intérieure et extérieure réalisé sous la direction de Martin Lammar, architecte à l'origine de la création de l'établissement fin 1992.

Passé la porte de l'Olivier, l'ambiance qui y règne est résolument fantaisiste.

Moshé Bahbout, le propriétaire est heureux de présenter en plus du restaurant gourmet, espace intimiste et raffiné avec son impressionnant lustre de velours sous le plafond chocolat, Le Lobby, une brasserie qui séduit par ses deux tendances controversées.

En ce qui concerne l'hôtellerie, en 2007, soucieux du confort des clients, l'établissement rénove ses alentours, son accueil principal et le 3ieme étage de l'édifice.

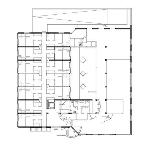
Fin 2013 début 2014, "Olivier Luxembourg" accroît ses capacités de séminaires par quatre nouvelles salles portant ainsi le nombre de salles de congrès/évents à sept.

Sous les noms de Cardamome, Safran, Cannelle et Sésame, on découvre dorénavant dans l'espace business, des structures modulables, équipées de la technologie moderne avec les salles de restaurant offrant de nombreuses alternatives et extensions pour l'organisation de conférences, séminaires, cocktails et autres manifestations professionnelles ou privées.